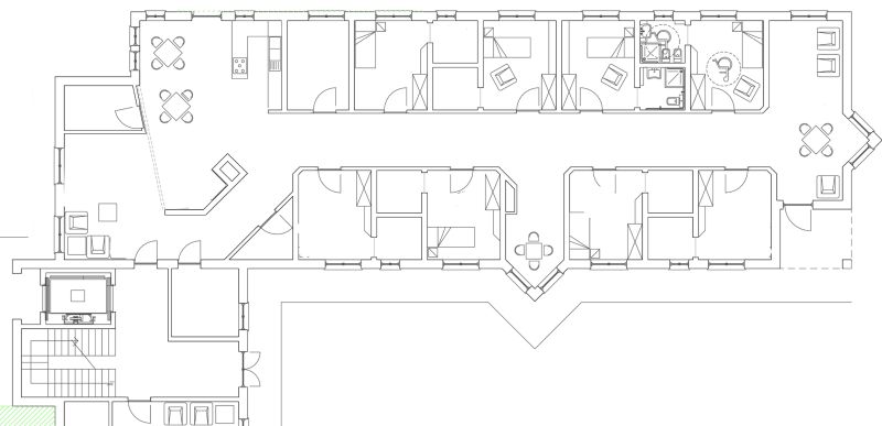
Alle porte di Monza si trova un villaggio di 15.000 m2 interamente dedicato alle persone con Alzheimer: il Paese Ritrovato. Qui i residenti ritrovano, appunto, una dimensione di socialità e di autonomia recuperando una normale quotidianità. Il villaggio, immerso nel verde, è caratterizzato da quattro corpi di fabbrica sviluppati su due livelli che ospitano gli appartamenti e posti attorno a un corpo centrale dedicato a tutti i servizi. I sessantaquattro residenti abitano in otto appartamenti di 42 m2 dotati di camere singole con bagno, una zona soggiorno, una zona pranzo, un’area TV e una piccola area per eventuali attività occupazionali. I servizi presenti nel villaggio sono il cinema teatro, un laboratorio per l’attività di bricolage, la Pro Loco, la chiesa, una piccola palestra, uno spazio lettura, il mini market associato al bar e il salone di bellezza. Tra le vie del villaggio abitanti, parenti e caregiver possono passeggiare in sicurezza in un’oasi senza traffico. Queste sono le premesse per un villaggio innovativo dove vengono dimenticati i tratti caratteristici degli spazi ospedalieri e dei luoghi per la lungodegenza.

Il Paese Ritrovato, inaugurato nel 2018, è frutto della capacità visionaria della Cooperativa La Meridiana – che da oltre 45 anni si occupa di assistere e curare persone anziane – e realizzato grazie alle donazioni di alcune famiglie e aziende della provincia di Monza e Brianza. Diverse sono le figure professionali coinvolte per la realizzazione del progetto: il progetto di cura e relazione è stato realizzato dal team di La Meridiana, il progetto architettonico da Giovanni Ignaro e il progetto percettivo da Aldo Bottoli. Il Paese Ritrovato rappresenta, a oggi, un caso unico in Italia ed è stato riconosciuto dal World Alzheimer Report (ADI, 2020) come uno tra gli esempi più innovativi su scala internazionale.
Alla base del progetto vi è l’interazione sociale tra gli individui che in un contesto abitativo tradizionale non risulta sempre possibile. Infatti, al fine di garantire una serena permanenza all’interno del Paese Ritrovato i residenti vengono coinvolti direttamente nelle attività organizzate dalla Cooperativa: ogni persona può decidere, in base alle proprie abitudini, competenze e tempistiche, quali attività svolgere durante la giornata e quindi essere protagonista della propria vita. All’interno del villaggio vi sono anche spazi – intimi e comunitari – dedicati ai parenti in visita.

Un altro aspetto fondamentale analizzato in fase di progettazione è il fatto che nelle persone con Alzheimer, diminuisce, se non addirittura scompare, la capacità di orientamento. Pertanto il progetto di architettura, sia nella scelta dei colori sia nella disposizione e definizione degli edifici e degli spazi pubblici, aiuta gli ospiti a orientarsi all’interno del villaggio. In questo modo, come affermato da Bottoli, si vengono a creare «scene che incuriosiscono e quasi chiamano, che possono innescare l’andare verso svolgendo una funzione di stimolo al movimento e alla relazione». Il progetto, quindi, innesca negli abitanti moti spontanei, stimolando gli automatismi appresi sia per svolgere le funzioni primarie – mangiare, vestirsi e lavarsi – sia per favorire momenti di socialità come andare dal parrucchiere e fare la spesa.

Questi aspetti di vita quotidiana consentono agli ospiti di rafforzare la parte residua di identità. L’identità del villaggio e l’orientamento sono supportati dall’uso del colore, studiato e progettato da Bottoli. Per il Paese Ritrovato sono stati selezionati dal Piano del Colore della città di Monza sedici colori cromatici e due acromatici. I colori principali sono due, il rosso e il giallo, che insieme alle relative gamme cromatiche vanno a definire le aree sud/ovest e nord/ovest del villaggio. Anche negli spazi interni il colore ha una funzione di orientamento, infatti ogni appartamento è caratterizzato da un colore dominante, visibile anche all’ingresso dell’abitazione, così da renderlo riconoscibile. Il Paese Ritrovato è quindi un villaggio dotato di tutti i servizi dove le persone con Alzheimer possono continuare a svolgere la loro vita quotidiana, in sicurezza e autonomia, assistiti al bisogno dal personale sanitario della Cooperativa La Meridiana. Un luogo dove il progetto di architettura diventa parte del programma di cura.
Luogo: Monza
Committente: Cooperativa La Meridiana
Superficie: 15.000 m2
Completamento: 2018
Architetto: Giovanni Ingrao (LaFontana)
Progetto percettivo, studio del colore: Aldo Bottoli
Foto: Aldo Bottoli, courtesy dell’autore
Agata Tonetti